Brand New Home Under Construction – Swakopmund Extension 23

N$2,995,000
Property Details

EXCLUSIVE MANDATE

Situated on a corner erf , this brand-new home currently under construction offers a well-designed layout combined with quality finishes by a contractor known for excellent workmanship.

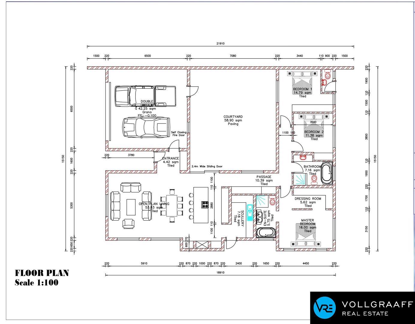
The home has been thoughtfully designed to create comfortable open-plan living. The spacious living and dining area features an indoor braai and flows into a modern kitchen with a central island and separate scullery, providing both practicality and style for everyday living and entertaining.

The property offers three bedrooms, including a main bedroom with dressing room and en-suite bathroom. Two additional bedrooms share a family bathroom, while a dedicated study area provides a convenient workspace or study corner.

A double garage, private courtyard area and an additional outside toilet add further practicality to the property, while the corner position allows for a comfortable sense of space and privacy.

Expected completion of the property is June 2026. Floor plan attached to see the size and layout.

This new home presents an excellent opportunity for buyers looking for a modern coastal residence, holiday home, or investment property in Swakopmund.

Please do note that photos are for illustration purpose as it is from a previous development by the contractor.

Property Features
Property Type
House
Bedrooms
3
Bathrooms
2
Garages
2
Floor Size
210m²
Land Size
564m²
Location
Make an enquiry
Interested in this property? Please fill in your details below, and we will contact you as soon as possible.
By clicking on "submit" you agree to our privacy policy.
Property Alerts
Receive email alerts for properties matching your criteria.
You may also be interested in these properties
N$ 3,750,000
House for sale in Swakopmund Ext 19
Virtual Tour
Dual-living For Family Or Investment
Coastal multi-generational living minutes from the beach and schools — dual homes with private entrances, polished cement floors, indoor/outdoor braai entertainment and tandem garages.
5
4
4
436m²
500m²
N$ 3,650,000
House for sale in Swakopmund Ext 22
Virtual Tour
Neat Corner Home With Bachelor Unit For Sale In Extension 22, Swakopmund
Walkable family living opposite Pro-Ed School, with flexible guest-friendly bachelor unit, cosy wood-burning fireplace and secure flower garden — three beds, three baths, double garage.
3
3
2
344m²
631m²